MLS-V düşük voltajlı şalt

Ev / Ürünler / Düşük voltajlı şalt / MLS-V düşük voltajlı şalt

Düşük voltajlı şalt

MLS-V düşük voltajlı şalt

MLS-V, A.C.50 Hz ile güç dağıtım sistemleri için geçerli olan bir tür fabrikada inşa edilmiş modüler düşük voltaj anahtar tertibatı (FBA), güç dağılımı, dönüşüm gibi fonksiyonları gerçekleştirmek için ≤6300A olarak derecelendirilen bir tür fabrikadır. , kontrol ve reaktif güç telafisi. LT aşağıdaki standartları karşılamaktadır: GB/T 7251.2, JB/T 9661, IEC61439-1 ve BS EN61439-1.

Genel bakış

MLS-V, A.C.50 Hz ile güç dağıtım sistemleri için geçerli olan bir tür fabrikada inşa edilmiş modüler düşük voltaj anahtar tertibatı (FBA), güç dağılımı, dönüşüm gibi fonksiyonları gerçekleştirmek için ≤6300A olarak derecelendirilen bir tür fabrikadır. , kontrol ve reaktif güç telafisi. LT aşağıdaki standartları karşılamaktadır: GB/T 7251.2, JB/T 9661, IEC61439-1 ve BS EN61439-1.

Model Anlamı3

Ürüne Genel Bakış

Hizmet Koşulları
Ortam sıcaklığı 40 ℃ 'dan yüksek olmayacak ve alt -5 ℃ daha düşük olmamalı ve 24 saat içinde ölçülen ortalama değer 35 ℃' yi aşmamalıdır.
Atmosfer Durumu: Temiz hava ile bağıl nem% 50'yi aşmalıdır. 40 ℃, ancak daha yüksek bir bağıl nem sadece daha düşük sıcaklıkta sürgün edilebilir, örneğin bağıl nem 20 ° 'de% 90'dır ℃ Güvenlik önlemleri, ortam sıcaklığı değiştiğinde uygun çiyin oluştuğu için uygulanmalıdır.
Sıcaklık -25 ℃ ile 55 ℃ arasındayken anahtarlama taşınabilir ve saklanabilir ve sadece kısa sürede (örn. 24 saat içinde) 70 ℃ dayanabilir.
Yükseklik 2000m'yi geçmemelidir.
Çevre Kirliliği Seviyesi: Şalt GB7251.12'ye verilen Seviye 3'ü tanımlanmıştır.
LF Seçilen bileşenler Yukarıdaki hizmet koşullarını karşılayamaz. Kullanıcı çözümler için üreticiye danışacaktır.
Çalışma koşulları yukarıdaki hizmet koşullarına uyamazsa, kullanıcı bunları üretici forConsultation'a verecektir.

Büyük Elektriksel Performans
Nominal Voltaj V Ana devre ≤ AC 400V
Yardımcı devre ≤Ac 380V, ≤ DC220V
Nominal yalıtım voltajı v Ana devre AC 690V
Nominal Dürtü dayanıklılık (1.2/50μs) KV Ana devre 6、8
Değerlendirilmiş Akım (LPX4]*A Ana Bara (MLS-V Çift Panel Şalteri)
Yardımcı Bara (Çizim) (eklenti türü)
Kısa süreli Woundcurrent Ka/1 saniye derecelendirildi Ana Bara 50、65、80、100
Yardımcı Bara 50、65、80、90
Nominal Zirve Akıma Dayanma KA/0.1 saniye Ana Bara 105、143、176、220
Yardımcı Bara 105、143、176、198
*Switchgear, ana bara ≤ 2500A'nın nominal akımı olan IP55'in gereksinimlerini karşılıyor.

Yapı özellikleri

Hücrenin yapı kısımları, AL-2N çizilmiş çelik tabakalardan ve kendi tepesinde vidalar ve modülertervol e-25mm'de montaj delikleri olan fonksiyon birimleri olarak bağlanan yüksek kaliteli soğuk çözünmüş çelik tabakalardan şekillendirilmiştir.

Hücrenin iç kısmı yatay baralar bölmesi, dikey busbar bölmesi LMCC paneline, fonksiyon birimi uyumluluğuna ve giden terminal bölmesine ayrılır. T, LP2X'in düzenlemelerini karşılar, bölmelerin spesifik konumları Şekil 1 ve Fıkıf 2'ye bakar.
Kübiklerin amaçlarına göre, yapısal modelleri aşağıdaki gibi sınıflandırılabilir.
a) PC Cubide --- Gelen ve Güç Centerlrefero Şekil 1.A, Şekil 2.A)
B) MC Cubide --- MotorControl Center Lrefer to Şekil 1.B, B, Şekil 2.B)
c) Reaktif güç telafisi cubide
Konutun yapısı ve boyutları için Şekil 1, Şekil 2 ve Tablo 1'e bakın.

Yükseklik (h) mm

Genişlik (w) mm

Derinlik (d) mm

Notlar

2200

300

1000

Bağlama kabini*

2200

400

1000

PC kabuğu

2200

500

1000

2200

600

1000

PC ve Reaktif Güç Tazminat kabini

2200

800

1000

2200

1000

1000

2200

1200

1000

2200

1000

1000 (600)

MCC kabin (MLS-V)

2200

600

1000

MCC kabini (MLS-V-600)


Kurulum modu

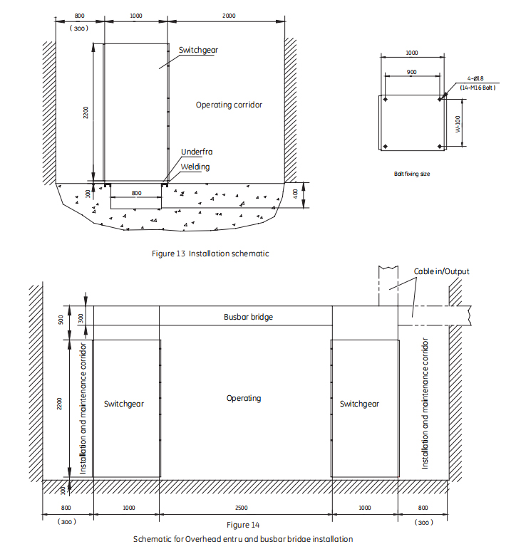
Anahtarların ayağı kaynak veya 4-16m cıvatalarla sabitlenebilir (bkz. Şekil 13). Kongrılar, 8-m8 iç-hexagon cıvatalarla bağlanır.
MLS-V tipi şalteri duvara monte edilir, ancak kabinin arkasını duvardan en az 300 mm uzakta önerir (bkz. Tofigure 13 ve 14).
MLS-V tipi anahtarlamalar duvardan uzakta dikilmeli ve duvardan en az 800 mm'lik adakansta bırakılmalıdır (bkz. Şekil 13 ve 14).

Lnstructions siparişi

Kullanıcılar aşağıdaki bilgileri sağlayacak veya tanımlayacaktır:
a) Ana devre tek satırlık diyagram
b) İkincil diyagram
c) Elektrikli bileşenlerin ayrıntılı özellikleri ve miktarı
d) Ana Bara kapasitesi veya spesifikasyonu
e) Giriş/giden ve kablo özellikleri şemaları
f) Toplamın toplam boyutu ve uçak düzenleme çizimi
g) Busbar kanalının boyutları ve kapasitesi (köprü)
h) Herhangi bir harmonik dokuma kaynağı le.g.g.Large-ölçekli doğrultucu ekipman), kullanım önleyici eylemleri belirleyecek veya istişare yoluyla ele alınmasını sağlayacak, herhangi bir dağıtım ve güç alıcı cihazlar gerçekleşecek.

Şirket Profili

Shanghai Infraswin Energy Co., Ltd.

2002 yılında kurucu Bay Zhu Ning, işine Çin'de başladı. 2009 yılında Şangay Infraswin Energy Co., Ltd. kuruldu. Infraswin, Ar-Ge, tasarım, üretim ve satışları entegre eden 37 patentli yüksek teknolojili bir işletme olan Çin Tedarikçileri ve Şirketidir. Şirketimiz 2017 yılında Ulusal Hisse Senetleri Borsası ve Teklifleri'nde (NEEQ) başarıyla listelendi. Hisse senedi 871504 hisse senedi kodu ile kısaltılıyor.

Infraswin, akıllı güç dağıtımının yanı sıra kapsamlı enerji yönetimi ve otomasyon kontrol ekipmanı entegrasyonunda uzmanlaşmıştır.

Infraswin, 720 numaralı, Fengxian Bölgesi, Şangay'da yer almaktadır. Güç dağılımımız ve otomasyon kontrol ekipmanlarımız CE ve UL sertifikaları aldı ve Çin'in Guobiao (GB) ulusal standartlarına uydu.

Ana müşterilerimiz arasında Rittal (Almanya), Rockwell (Amerika Birleşik Devletleri), Siemens (Almanya), ABB (İsviçre), Panasonic (Japonya) ve GEA (Almanya) gibi önde gelen küresel şirketler bulunmaktadır. Ayrıca, orijinal ekipman üreticisi (OEM) olarak Şangay Disneyland için elektrikli ekipmanların ana tedarikçisi olmaktan gurur duyuyoruz. 

13000 +

Fabrika Alanı (㎡)

2002

Kuruldu

3000 +

Proje vakaları

80 +

Çalışanlar

İletişimi koparmamak

SUBMIT

Haber merkezi

  • Sektör haberleri

    Orta Gerilim Güç Dağıtımını Anlamak
    Orta Gerilim Güç Dağıtımı Nedir? Orta gerilim güç dağıtımı, elektrik gücünün tipik olarak 1 kV ile 36 kV arasında değişen orta gerilim seviyelerinde iletiminden ve dağıtımından sorumlu olan sist...

    2025-10-24

  • Sektör haberleri

    Orta Gerilim Güç Dağıtımını Anlamak
    Orta Gerilim Güç Dağıtımı Nedir? Orta gerilim güç dağıtımı, elektrik gücünün tipik olarak 1 kV ile 36 kV arasında değişen orta gerilim seviyelerinde iletiminden ve dağıtımından sorumlu olan sist...

    2025-10-24

  • Sektör haberleri

    Enerji Depolama: Enerji Ortamını Yeniden Şekillendirmek
    Enerji devriminden bahsederken, enerji depolama sahne arkasından sessizce merkeze doğru ilerliyor ve yeni enerji kaynaklarını, elektrik şebekesini ve son kullanıcıları birbirine bağlayan temel bağl...

    2025-10-15